Fellerstrasse 30, Tscharnergut

MedienmitteilungErsatzneubauWaldmansstrasse 25TscharnergutVergleichMedien/DownloadsKontakt 

Ersatzneubau Fellerstrasse 30

Einleitung

Das Gebäude Fellerstrasse 30 ist im Quartierinventar Bethlehem der Gebäudegruppe F Tscharnergut zugeteilt und als schützenswert eingestuft. Wir bekräftigen die Auffassung, dass das Tscharnergut als Gesamtüberbauung schützenswert ist. Seine Rolle als städtebauliche und siedlungsgeschichtliche Pionierleistung muss gewürdigt werden und als lebenswertes Zeitzeugnis der Nachwelt erhalten bleiben. Die Erfahrungen aus der sorgfältigen und denkmalpflegerisch korrekten Sanierung des Pilotprojektes Waldmannstrasse 25, die aufgrund der Planungsvereinbarung 2011 durchgeführt wurde, zeigen aber offensichtliche Probleme bezüglich der technischen Bauqualität, der Anpassbarkeit an neue Raumansprüche und damit an die Gebrauchstauglichkeit und Vermietbarkeit. Weiter musste festgestellt werden, dass die Anpassung der Grundrisse im Hinblick auf einen ausgewogeneren Wohnungsmix nicht möglich ist. Nicht zuletzt stellt die Bauherrschaft nach Abschluss der Arbeiten fest, dass der ökonomische Aufwand dieses Konzeptes nicht vertretbar ist. Kosten und Nutzen stehen in keinem vertretbaren Verhältnis. Die FAMBAU hat deshalb beschlossen, ihre weiteren Scheibenhäuser nicht nach diesem Konzept der Planungsvereinbarung 2011 umzubauen.

Reinhardpartner erhielt deshalb den Auftrag, einen Ersatzneubau zu planen, der wohl das äussere Erscheinungsbild des Scheibenhauses im Rahmen der Gesamtanlage Tscharnergut wahrt, aber mit zeitgemässen Wohnungsgrundrissen, einem neuen Wohnungsmix und aktuellen komfortmässigen, technischen sowie energetischen Standards dem Tscharni eine Entwicklung in die Zukunft garantiert.

Mit dem vorliegenden Bauprojekt vertreten wir die Auffassung, dass ein Ersatzneubau als „Rekonstruktion“ mit den wichtigsten gestalterischen Merkmalen der richtige Weg für die Zukunft ist. Dies insbesondere auch im Hinblick auf die denkmalpflegerische Schutzwürdigkeit der Gesamtanlage sowie alle andern Nachhaltigkeitsaspekte, die der FAMBAU ein grosses Anliegen sind. Auf die Berücksichtigung des sozialen Aspektes einer Durchmischung mit heute aktuellen Familienwohnungen in kinderfreundlicher Umgebung sowie altersgerechten Wohnungen soll ein besonderes Augenmerk gelegt werden. Der Wandel im Tscharni soll mit „Enkeltauglichkeit“ den nächsten Generationen sinnvollen, bezahlbaren und gut nutzbaren Wohnraum hinterlassen, so wie es einst der Grundgedanke der Erbauer war.

Baugeschichte

Das Tscharnergut ist geprägt von vier Typen von unterschiedlichen Wohnbauten, die im Sinne der „gemischten Bauweise“ in einem Orthogonalraster entlang dem Rückgrat des Mittelweges gesetzt sind. Erstellt wurde die erste grosse Nachkriegssiedlung 1958- 65 für 5000 Einwohner und bietet alle nötigen Infrastruktureinrichtungen für den täglichen Bedarf wie Läden, Kindergärten, eine Kinderkrippe, eine Schule, ein Restaurant und eine Freizeiteinrichtung. Das Tscharnergut ist weitgehend autofrei, innerhalb der Siedlung führen lediglich kleine Stichstrassen zu den Parkplätzen und Einstellhallen. Die restlichen autofreien Aussenräume stehen den Bewohnern und vor allem ihren Kindern zur freien Verfügung: Diese riesigen Freiflächen zwischen den Häusern wurden zur «Allmend des Kindes» deklariert.

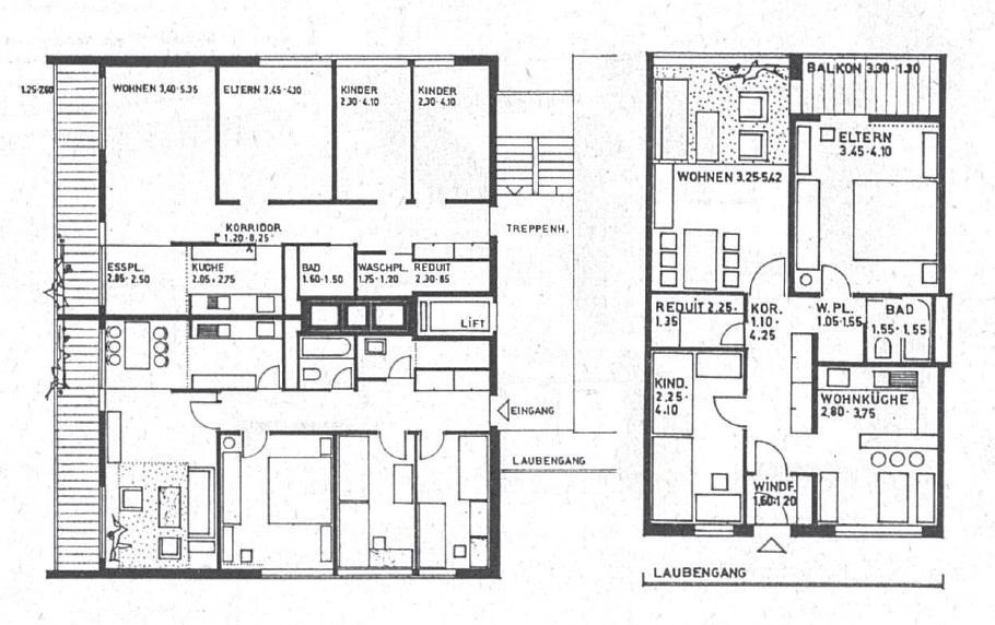
Das Gebäude Fellerstrasse 30 ist eines von vier ungleich langen, achtgeschossigen Scheibenhäusern, denen ein gemeinsames Konzept bezüglich Grund- und Aufriss sowie bezüglich Konstruktion zugrunde liegt. Die Bauten bestehen im Wesentlichen aus zwei Teilen: einem langgestreckten Laubengangtrakt und einem südseitig anschliessenden verputzten Kopfbau, der sich durch seine einseitige Verbreiterung und durch das an der Westfassade einspringende Fensterband eines integrierten Treppenhauses absetzt. Der Kopfbau enthält pro Etage zwei symmetrisch zur Längsachse des Hauses angeordnete Viereinhalb-Zimmer-Wohnungen, die sich mit Loggien gegen Süden orientieren. Die Südfassade lebt mit der Abdrehung des Grundrisses von der Gliederung mit Loggienöffnungen und -brüstungen.

Im Laubengangtrakt befinden sich je nach Hauslänge drei bis fünf Paare gespiegelter kleiner Dreieinhalb- Zimmer-Wohnungen. Die schmale Nordfassade gegen den Mittelweg ist als geschlossene, verputzte Wand ausgeführt. An den Längsfassaden erzeugen die unterschiedlichen Gebäudeteile eine deutliche Spannung, indem der Laubengangtrakt eine stark horizontale Gliederung und der abgesetzte Kopfbau als Abschluss einen vertikalen Akzent setzt.

Das optische Gleichgewicht wird stabilisiert durch den schlanken vertikalen, ostseitig dem Laubengangtrakt vorgestellten Lift-/Treppenturm. Stilistisch nehmen die Bauten die in der Moderne wurzelnden, rationalistischen Strömungen der 60er Jahre vorweg. Räumlich gesehen bilden sie sowohl geschickt gesetzte Zäsuren innerhalb der Grossüberbauung, als auch verbindende Elemente zwischen Fellerstrasse und dem Mittelweg als Fussgängerbereich.

Die Konzeption und Konstruktion der Wohnbauten ging vom äusserst sparsamen Umgang mit finanziellen Ressourcen aus. So wurden die Baukosten von den zukünftigen Mieten her plafoniert, die für kinderreiche Familien besonders günstig sein sollten. Die Bauweise wurde deshalb möglichst rationell gewählt und Einsparungen konnten durch grosse Mengenrabatte und Materialeinsparungen (z.B. dünne Betondecken) erzielt werden.

So wurde z.B. die Laubengangerschliessung für die Scheibenhäuser aufgrund umfangreicher Studien ausdrücklich aus Kostengründen gewählt. Es wurde versucht, mit möglichst wenigen Erschliessungskernen auszukommen; auch die Anzahl Lifthaltestellen wurde optimiert, indem die Haltestellen auf den Zwischenpodesten immer zwei Geschossen dienen.

Die Grundrisse sind für alle Wohnungen mit der gleichen Zimmerzahl identisch. Insgesamt entstanden 1182 Wohnungen – 70 Prozent davon sind Dreizimmer-Wohnungen. An der Fellerstrasse 30 sind es 64 Wohnungen, davon 16 Vierzimmer-Wohnungen mit 81 m2 und 48 Dreizimmerwohnungen mit 67 m2.

Baugeschichte

Ersatzneubau als 'Rekonstruktion'

Die Zahl der ursprünglich 5000 Bewohner der Grosssiedlung hat sich halbiert, das Konzept Tscharnergut wurde vor 60 Jahren erarbeitet und es zeigen sich nun grosse Differenzen zwischen damaligen und heutigen Anforderungen an eine Wohnung. Dem soll mit dem Ersatzneubauprojekt entgegengewirkt werden: mit breiterem Wohnungsangebot, besserer Durchmischung von Jung und Alt, grösseren Wohnungen, hohe Gebrauchstauglichkeit der Grundrisse und Raumproportionen für heutige Ansprüche sowie heutigen Standards bezüglich Energieanforderungen und Schallschutz etc.

Das vorliegende Bauprojekt versteht sich als Ersatzneubau im Sinne einer Rekonstruktion des bestehenden Gebäudes. Damit soll der denkmalpflegerischen Einstufung des Gebäudes und dessen Einbindung in die Gesamtsiedlung Tribut gezollt werden. Die Stellung im Quartier sowie auch die architektonische Konzeption des Scheibenhauses S8 wird übernommen. Ebenso werden gestalterische Merkmale im Aeusseren im Interesse des einheitlichen Siedlungsbildes adaptiert. Dank heutigen Konstruktionsmöglichkeiten werden die Oeffnungen auf beiden Seiten auf der zurückgesetzten Fassadenebene im Interesse einer räumlichen Oeffnung und besseren Belichtung vergrössert.

Gestaltung, Merkmale

Die zusätzliche westseitige Raumschicht wird analog dem Pilotprojekt gemäss der Planungsvereinbarung übernommen und es ist geplant, sie bis über den Kopfbau weiterzuziehen, so dass kein neuer Versatz zwischen Kopfteil und Längsbau entsteht. Die Grösse des Kopfbaus ist neu so gewählt, dass zwei gut proportionierte 4.5-Zimmer Wohnungen angeordnet werden können.

Das Erschliessungsprinzip wird beibehalten, das Treppenhaus bildet die Fuge zwischen Kopf- und Scheibentrakt, der andere Erschliessungskern ist als vorgestellter Turm mit der prägnanten Laubengang- Erschliessung ostseitig angeordnet.

Die Wohnungen im Längsbau werden nach wie vor über den Laubengang erschlossen, wobei dank der Wohnungsverteilung keine Individualzimmer durch nachbarliche Erschliessungen beeinträchtigt werden. Die Wohnungen sind mit durchgehenden Wohn/-Ess- und Loggiabereichen organisiert und von dort angeschlossen die Zimmer und Nebenräume. Die Südfassade ist horizontal gegliedert und lebt vom Wechsel von Fensterbändern und eingezogenen Loggias.

Neben den äusseren Gestaltungsgrundsätzen der Scheibenhäuser wird auch das Material- und Farbkonzept mit Elementbeton- Brüstungen, grober Körnigkeit des Verputzes an den Stirnfassaden, den Treppentürmen in Ortsbeton sowie dem „Schmetterlingsdach“ in Eternit weitestgehend respektiert und damit das einheitliche Erscheinungsbild gewahrt.

Grundrissvergleich Normalgeschosse

Ist-Zustand mit Potential gemäss Planungsvereinbarung (rot)

Ersatzneubau

Flächen- und Wohnungsvergleich

Vergleich

Ist-Zustand

Ersatzneubau

Geschossfläche GF

6'410

7'742

Bruttogeschossfläche BGF

5'984

6'856

Hauptnutzfläche HNF

4'544

5'104

Wohnungsmix

 

 

5.5 Zimmer

0

8

4.5 Zimmer

16

24

3.5 Zimmer

48

8

2.5 Zimmer

0

16

Wohnungsanzahl

64

56

Visualisierungen Aussenansichten Ersatzneubau

Visualisierungen Wohnungen Ersatzneubau

Kopfbauwohnung 4.5 Zimmer

Längsbauwohnung 2.5 - 5.5 Zimmer

© 2026 | FAMBAU Genossenschaft | Impressum | by WebMultiMedia